News

McLean office park owner makes bid to add housing, underground utilities

Some more construction could be in store for the southwest corner of Chain Bridge Road and Tennyson Drive in McLean.

The owner of the McLean Professional Park is seeking to replace six buildings in the office complex with a five-story, 104-unit multifamily residential building, according to a rezoning application submitted to Fairfax County on Monday (April 17).

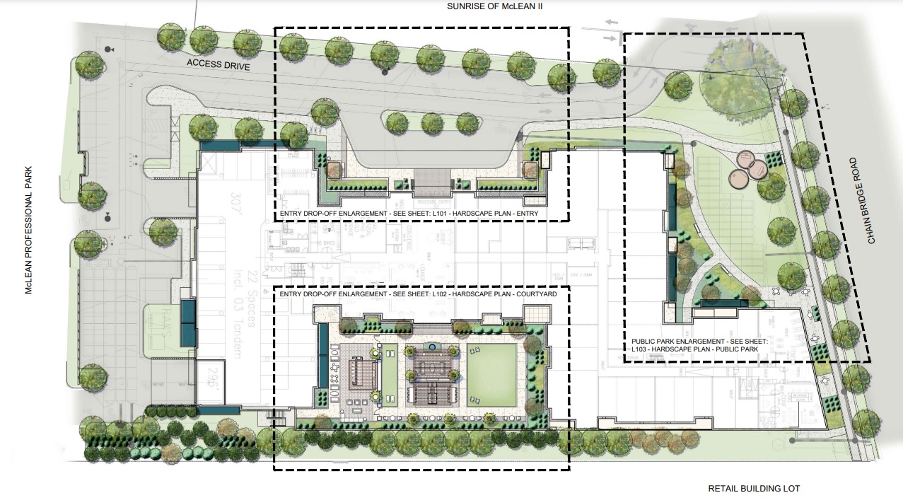
The 2.8-acre site is sandwiched in between the McLean Commerce Center and Sunrise Senior Living’s upcoming McLean facility, which is currently under construction. Four low-rise office buildings on a 1.6-acre parcel at the back of the property and some surface parking will remain.

“The Applicant proposes a development that will enhance downtown McLean and provides an opportunity for additional residents to live in the downtown area [who] will benefit retail and restaurant establishments and ensure the vibrancy of the downtown,” Walsh Colucci lawyer Lynne Strobel said in a statement of justification for property owner T&M McLean Venture LLC.

Built in 1980, the buildings eyed for replacement range from two to three stories in height. Existing tenants include various fitness and wellness centers like Pilates of McLean, a law firm, a watch repair shop, and two schools, Principia Tutors and Kids Language Arts.

There’s no clear timeline for the redevelopment, which carries an estimated cost of around $80 million, T&M principal Jim Perry told the Washington Business Journal.

The 68-foot-tall residential building will have 92 market-rate and 12 workforce dwelling units in line with the county’s requirements. The units will be “a mix” of sizes with two or three bedrooms, though the application doesn’t indicate whether rental apartments or condominiums are planned.

The development plan provides 199 parking spaces, including 17 surface spaces behind the building and 182 spaces in an underground garage. The garage will have electric vehicle charging stations.

For residents, potential amenities include an elevated outdoor courtyard, an outdoor plaza lounge, fitness and conference centers, a dog spa, and a bicycle storage and maintenance room.

A proposed, 17,633-square-foot urban park along Chain Bridge Road will be publicly accessible and feature an open lawn, benches, cafe tables, walking paths and “artful shade structures,” per the plan.

As part of the project, the developer has offered to underground utilities along the site and improve Chain Bridge with a 6-foot-wide landscape amenity panel and an 11-foot-wide path, consisting of a 6-foot-wide sidewalk and a 5-foot-wide, one-way cycle track.

“Where possible given the underground utilities, a second row of trees in the building zone has been provided to provide shade over the Chain Bridge Road sidewalk,” Strobel wrote. “The shift to a more pedestrian-oriented site design, with underground parking is supportive of the [county’s] planning principles.”

As noted by the application, the proposal meets the “optional” level of development recommended by the county’s McLean Community Business Center comprehensive plan, which was rewritten in 2021.

The property lies in the approximately 54-acre “general zone,” which is intended to be midrise buildings as a transition between the more intense “center zone” and mostly residential “edge zone.” The plan allows for up to 3,150 dwelling units and 2.7 million square feet of residential uses in the general and center zones.

While movement to implement the plan was initially sluggish, construction recently began on a residential project at 6707 Old Dominion Drive that helped jumpstart the downtown McLean revitalization effort. Renovations of the Chesterbrook and Chain Bridge shopping centers are also in the works.

About the Author

  • Angela Woolsey is the site editor for FFXnow. A graduate of George Mason University, she worked as a general assignment reporter for the Fairfax County Times before joining Local News Now as the Tysons Reporter editor in 2020.