A Maryland developer wants to build a mix of housing in place of the Tysons Concourse office buildings near the Spring Hill Metro station.
When completed, the development would deliver more than 1,000 new homes across two high-rise apartment buildings and several blocks of townhouses and triplexes, according to a proposal from Berman Enterprises, submitted to Fairfax County on Jan. 23.
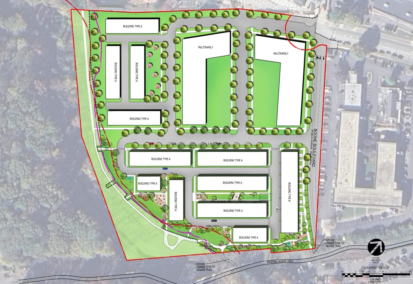
Seeking to rezone the 10.9-acre property at 1593 and 1595 Spring Hill Road from a medium-intensity industrial district to the Tysons PTC District, which encourages urban, mixed-use development, Berman says its project would further the county’s vision of Tysons West as a “vibrant” destination that serves as “a gateway to Tysons from Leesburg Pike” and other major roads.
“Consistent with Fairfax County’s vision for the Transit Station Areas, specifically the Tysons West area, the Applicant proposes a phased, primarily residential development with varied heights, density, and housing types,” Venable land use counsel Zachary Williams wrote in a statement for the application.
The plan calls for up to 1,098 homes that would be constructed in two phases, starting with 22 triplex or two-over-two units and 68 traditional townhouses. The second phase would add another 40 townhouses and two 225-foot-tall multifamily buildings with a combined 968 apartments across 21 stories.
The ground floors of the apartment buildings would feature up to 30,000 square feet of retail and commercial space fronting Spring Hill Road and a future extension of Boone Blvd.
The developer says it will meet the county’s requirements for affordable and workforce housing, but doesn’t specify how many units will be provided.
The multifamily buildings would be located on the northern corner of the site, closest to the street and the Metro station, while the smaller-scale first phase occupies land closer to the Old Courthouse Spring Branch Stream Valley Park that runs along the southern side of the property.

“The Property is uniquely positioned between the Metro and the Old Courthouse Spring Branch Stream Valley Park,” Williams wrote. “The proposed development positions the up to 21-story multifamily buildings closest to the Metro Station with sensitively transitioning form and scale down to townhouses of up to 50’ in height, close to the stream valley park.”
As part of the redevelopment, Berman intends to provide over five acres of open space, including nearly 3.2 acres of urban parks with amenities such as a playground, dog park, an open lawn area, outdoor seating, a grill area and a new trail network.
“While the details of the Phase 2 parks will be designed in the future, they are envisioned as adaptable, multiuse areas, with seating and amenities,” the application says.
The developer also says it would bring stormwater management on the site up to current standards and provide up to 419 parking spaces, including a maximum of 120 spaces for the retail and commercial uses in an underground garage.
Constructed in 1986, the Tysons Concourse office complex consists of two seven-story buildings linked by a one-story atrium. It was acquired by Berman Enterprises on July 17, 2023 for $20 million — a sharp drop from the $78.8 million that the previous owner paid in 2016, according to Fairfax County property records.
While the rezoning application doesn’t mention any leasing challenges, Berman’s listing for the office park says it has nearly 50,000 square feet available, highlighting “recent” renovations and on-site amenities that include a 131-seat auditorium, an “expanded” fitness center, a cafe with an outdoor patio and a tenant lounge.
Tysons Concourse joins a growing list of older office properties in Tysons and elsewhere in Fairfax County that have been approved or are being considered for residential redevelopments, from Southern Management’s former office on Gallows Road to the recently purchased Tysons Dulles Plaza on the eastern end of Spring Hill Road near International Drive.